Prečerpávacia nádrž SAKAL HARD - spoľahlivá prečerpávacia nádrž pre bežné podložie

doprava zadarmo

Čerpacia nádrž slúži po vystrojení čerpacím systémom na napojenie na centrálnu kanalizáciu tam, kde je vyústenie Vášho odpadu pod úrovňou vstupu do kanalizácie. 


Ďalšie využitie nájde prečerpávacia šachta aj na mieste, kde je prečerpávanie odpadovej vody nutné na prekonanie dlhšej vzdialenosti počas ktorej by hrozilo časté zanášanie. 


Unikátna konštrukcia plášťa z 100% vodonepriepustného plastu a s výstuhami z nerezovej ocele na zabezpečenie potrebnej únosnosti je vyrobená výhradne z najlepších materiálov 1. kvality, čo ho odlišuje od väčšiny prečerpávacích nádrží na trhu. 


Konštrukcia našich prečerpávacích nádrží je navyše samonosná, takže ich pri inštalácii nemusíte obetónovať a ušetríte tak čas a peniaze. Čerpacia nádrž je ďalej vybavená ľahkým plastovým uzamykateľným poklopom, ktorý je možné na základe Vašej požiadavky nahradiť poklopom záťažovým. 


Inštalácia je jednoduchá aj vďaka nízkej hmotnosti a tvaru prečerpávacej nádrže a 100% výrobnej príprave pre napojenie bez improvizácií a je možné ju vykonať svojpomocne počas niekoľkých hodín. 


Dlhá životnosť je jasným argumentom pre váš výber.

 
Čítat ďalej
Skladom
394,00 €
s DPH 23 %
320,30 € bez DPH
Varianty produktu:
Prečerpávacia stanica 8/20 HARD + TLAKAN P4 – extra spoľahlivá s dvojitým istením Skladom
1 912,70 € DPH 23 %
Prečerpávacia stanica 8/20 EXTREME + TLAKAN P4 – extra spoľahlivá s dvojitým istením Skladom
1 938,50 € DPH 23 %
Prečerpávacia stanica SAKAL HARD + HCP BF 05 - výkonná prečerpávacia stanica Skladom
1 054,00 € DPH 23 %
Zobraziť viac variant
Potrebujete pomôcť? - ilustrační obrázek
Potrebujete pomôcť?
+421 903 573 090 (Pondelok - Piatok: 7.30–16.00)
Dekorácia Dekorácia

Popis produktu

Prečerpávacia nádrž SAKAL HARD - spoľahlivá prečerpávacia nádrž pre bežné podložie


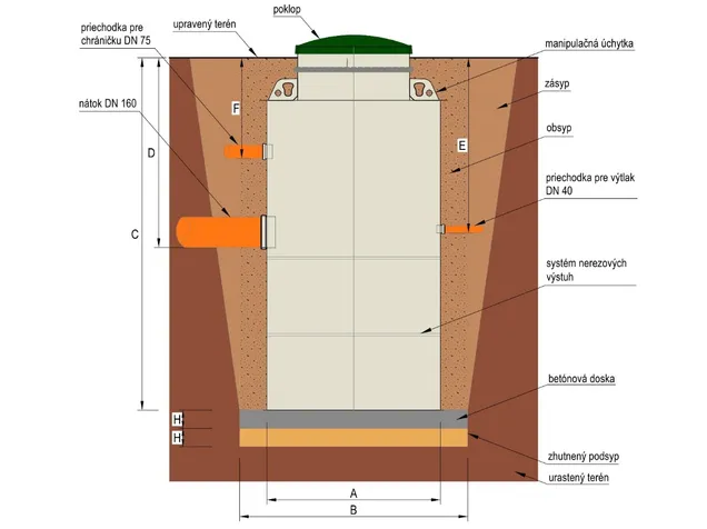
Teleso prečerpávacej nádrže je postavené na základe valcovitého tvaru s oceľovou výstužou. 


Pri konštrukcii prečerpávacej nádrže je použitý iba materiál najvyššej kvality. Prečerpávaciu nádrž je teda možné umiestniť prakticky do všetkých hydrogeologických podmienok bez obáv, že by mohlo dôjsť k jej poškodeniu pôdnymi vplyvmi. 


Prečerpávacia nádrž je vďaka 100% výrobnej príprave pripravená na napojenie na kanalizáciu bez improvizácií. V plášti nádrže je navarené nátokové hrdlo DN 160 na napojenie gravitačnej kanalizácie. 


Nádrž je ďalej vybavená gumovou prechodkou DN 40 na pretiahnutie výtlačného potrubia a plastovou prechodkou DN 75 na pretiahnutie elektroinštalácie. 


Plastová prečerpávacia nádrž je komplexne pripravená na inštaláciu vnútorného čerpacieho systému značiek HCP a NORIA podľa Vášho výberu a podľa účelu použitia.

Technické parametre


Užitkový objem0,6 m³
Havarijný objem1,1 m³
Výška1,93 m
Priemer0,95 m
Hmotnosť45 kg

Osadenie do terénu

Prečerpávacia nádrž je určená na inštaláciu do pripraveného výkopu pod úroveň terénu. 

Prečerpávaciu nádrž uložíme priamo na pripravenú základovú dosku. 

Potom vykonáme jej obsyp. 


Vďaka unikátnej konštrukcii nie je potrebné čerpaciu šachtu obetónovať, čo Vám ušetrí značné množstvo času a prostriedkov.

A (m)B (m)C (m)D (m)E (m)F (m)H (m)
0,951,251,931,041,020,550,10

Napísali o produkte

Zatiaľ neevidujeme žiadne recenzie uživateľov na e-shopu k tomuto produktu.

Proč si zvolit nás

Ilustračný obrázok inštalácie na kľúč
Naše inštalácie na kľúč
  • Doprava zadarmo
  • Výkopové práce v cene
  • Inštalácie a napájanie
Zobraziť viac
Dekorácia
Ilustračný obrázok zariadíme projekt
Doprava
  • Dopravu vyriešime za vás
  • Vlastný vozový park
  • Profesionálni vodiči
Zobraziť viac
Dekorácia
Radi Vám zavoláme

Neváhajte,pošlite nám svoje telefónne číslo a my sa Vám čo najskôr ozveme.

Alebo nám napíšte e-mail.
Rádi Vám napíšeme

Neváhajte, odošlite nám svoju e‑mailovou adresu a  my Vám čo najskôr napíšeme.